Sloping Lot 3-Bedroom 1-Story Mountain Farmhouse with Lower Level Expansion (Floor Plan)

Specifications:
- 2,766 Sq Ft
- 2 – 3 Beds
- 2.5 – 3.5 Baths
- 1 Stories
- 3 Cars
Imagine yourself on a leisurely walk, surrounded by the picturesque beauty of a mountain landscape.
The gentle breeze playfully brushes against your cheeks as you take in the breathtaking view.
Suddenly, you spot it: an idyllic mountain farmhouse sitting on a sloped terrain, reminiscent of a tranquil mountain goat in its natural setting.






Perhaps comparing a house to a goat seems a bit eccentric, but if any house could embody the grace and charm of a goat, it would be this 2,766 square foot gem.
Let’s explore the enchantment this home has to offer.
This isn’t just any farmhouse.

As you step through the front door, prepare to be swept off your feet.
Inside, you’ll find a cozy layout featuring two bedrooms and two and a half bathrooms, all on a single floor.
Think it might be cramped?

Not at all!
There’s even the possibility of expanding to a lower level, adding another bedroom and bathroom – perfect for when the in-laws decide to extend their visit, allowing you to maintain your peace of mind.
The exterior of this home perfectly mirrors the quaintness of the mountains.

Picture a deck wrapping around the front and side, right up to the master suite.
It’s the ideal spot to spend a lazy Sunday, lemonade in hand, watching the world drift by.
This deck is the epitome of luxury and practicality, offering direct access to the vaulted great room via sliding doors.

It’s like having a high-end cabin tucked away in the forest!
Enter the kitchen and you’re in a chef’s paradise.

The centerpiece is a massive island, so big you could almost mistake it for a landing strip.
While that may be a bit of an exaggeration, you’ll certainly have no trouble preparing a Thanksgiving feast here.

And the walk-in pantry?
It’s so roomy you could almost camp in it – just kidding, but it’s certainly big enough to store an entire year’s supply of your favorite snacks.

The layout of this home is thoughtfully designed with privacy in mind.
The master suite is strategically placed at the back for solitude, while the second bedroom is conveniently situated at the front, across from the den.

It’s your own personal sanctuary, a place to escape the daily grind and indulge in some well-deserved ‘me-time’.
And that’s just the beginning.

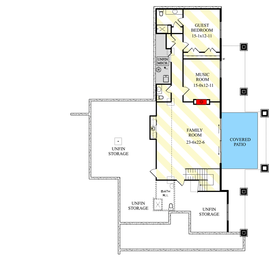
Descend to the lower level and it’s like stepping into a magical realm.
Think of it as your own personal Narnia, equipped with a wet bar for your mixology experiments, a spacious family room with patio access for movie nights, and even a convenient half bath.

But there’s more.
An additional room is available for whatever you fancy – maybe a music room or a place to practice your air guitar skills.

And let’s not forget the guest bedroom suite – a perfect haven for your visiting in-laws.
With the basement finished as depicted, you gain an extra 1,424 square feet of living space.

It’s like adding a whole New York City apartment, minus the urban chaos.
In summary, this mountain farmhouse is a marvel of versatility and charm.

It combines the allure of rustic living with modern comfort and practicality, all within a compact 2,800 square feet.
It’s a place where warmth and spaciousness coexist, a perfect blend of beauty and functionality.

So, if you’re in search of a farmhouse that marries stunning aesthetics with practical design, set amidst a picturesque mountain landscape, your search ends here.
This isn’t just any house – it’s the home you’ve always dreamed of.

And when you finally settle in, you’ll be echoing the sentiment, “Home sweet home!”
See, a home that’s akin to a goat doesn’t sound too bad now, does it?










